Hövelmanns Hus - Wohnung 9 Grundriss

Die Wohnung 9 befindet sich im Obergeschoss von Hövelmanns Hus.

Mit ihrer nordwestlichen Ausrichtung bietet sie den optimalen Schattenplatz im Hochsommer. Die Wohnung ist zur Seite des Hauses gelegen mit einem ca. 3,1 m² großen Balkon, weg von der Straße, und daher besonders ruhig. 

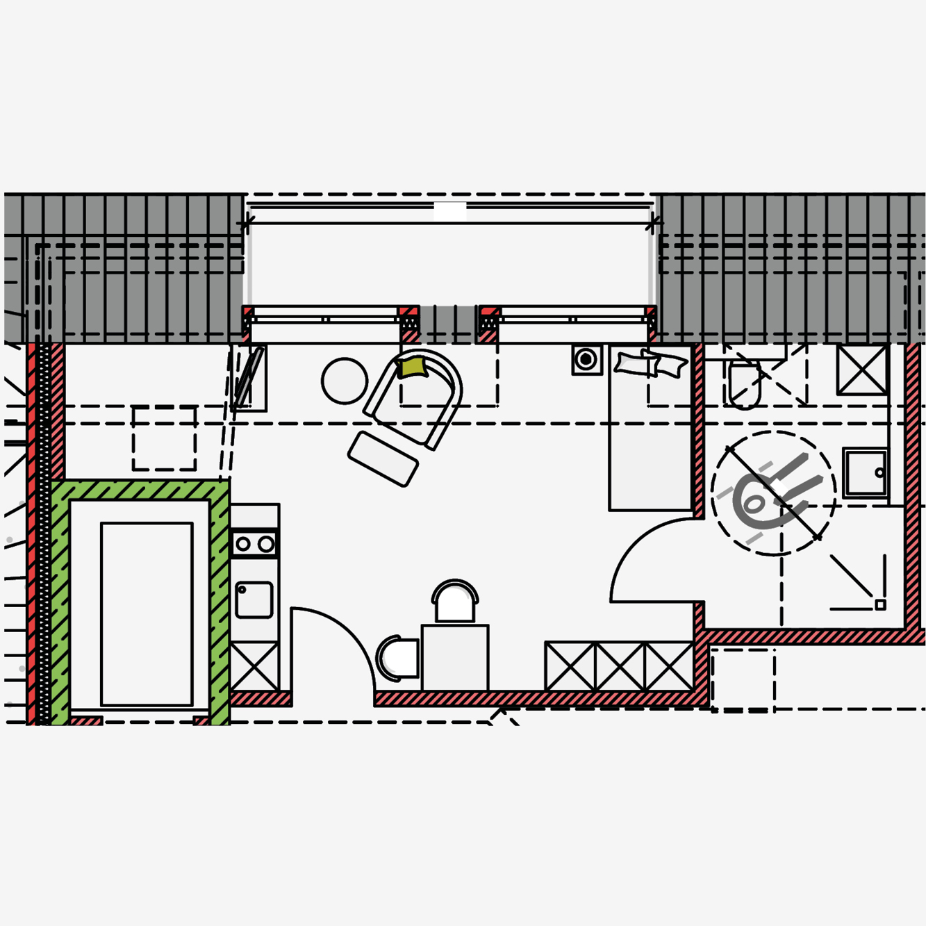
Das barrierefreie City Apartment hat einen großzügigen Wohnbereich mit offener Kochnische.

Das moderne Duschbad ist rollstuhlgerecht.

Die Wohn- und Nutzfläche von 37,69 m² beinhaltet eine Gemeinschaftsfläche von anteilig 3 m².

Inklusive

  • Telefonanschluss
  • Satelliten-TV-Anschlüsse
  • Lüftungsanlage
  • 24 h-Notruf
  • Integrierte Küchenzeile inkl. Geräte
  • Fahrstuhl für die Obergeschosse

Pflegedienst Hövelmann
Bödigestraße 11
26871 Papenburg
Tel.: 0 49 61 / 66 59 - 0
Fax: 0 49 61 / 66 59 - 19
E-Mail: info@pflegedienst-hoevelmann.de