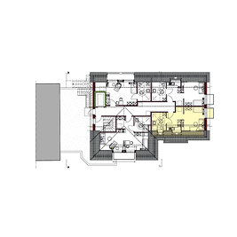
Die Wohnung 11 befindet sich im Obergeschoss von Hövelmanns Hus.
Mit ihrer südöstlichen Ausrichtung bietet sie viel Sonnenlicht am Vormittag. Die Wohnung ist zur Seite des Hauses gelegen sowie mit einem ca. 1,9 m² großen Balkon zum Splitting ausgestattet und bietet daher einen besonderen Ausblick auf das Leben am Obenende.
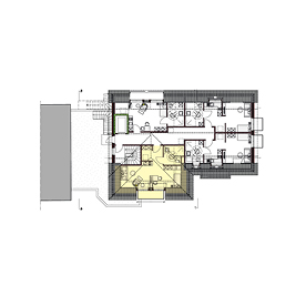
Die Wohnung 12 befindet sich im Obergeschoss von Hövelmanns Hus.
Mit ihrer südlichen Ausrichtung bietet sie viel Sonnenlicht. Die behindertengerechte Wohnung ist zur Seite des Hauses gelegen und mit einem eigenen ca. 3 m² großen Balkon ausgestattet.