Die Wohnung 6 befindet sich im 1. Obergeschoss von Hövelmanns Hus.
Mit ihrer nordöstlichen Ausrichtung bietet sie den optimalen Schattenplatz im Hochsommer. Die Wohnung ist zur Seite des Hauses gelegen mit einem ca. 1,4 m² großen Balkon zum Splitting ausgestattet und bietet daher einen besonderen Ausblick auf das Leben am Obenende.
Die Wohnung 7 befindet sich im 1. Obergeschoss von Hövelmanns Hus.
Mit ihrer südöstlichen Ausrichtung bietet sie viel Sonnenlicht am Vormittag. Die Wohnung ist zur Seite des Hauses gelegen sowie mit einem ca. 1,4 m² großen Balkon zum Splitting ausgestattet und bietet daher einen besonderen Ausblick auf das Leben am Obenende.
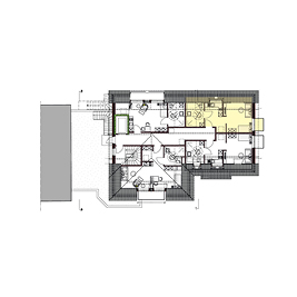
Die Wohnung 8 befindet sich im 1. Obergeschoss von Hövelmanns Hus.
Mit ihrer südlichen Ausrichtung bietet sie viel Sonnenlicht. Die Wohnung ist zur Seite des Hauses gelegen und mit einem eigenen ca. 1,8 m² großen Balkon ausgestattet.
Die Wohnung 9 befindet sich im Obergeschoss von Hövelmanns Hus.
Mit ihrer nordwestlichen Ausrichtung bietet sie den optimalen Schattenplatz im Hochsommer. Die Wohnung ist zur Seite des Hauses gelegen mit einem ca. 3,1 m² großen Balkon, weg von der Straße, und daher besonders ruhig.
Die Wohnung 10 befindet sich im Obergeschoss von Hövelmanns Hus.
Mit ihrer nordöstlichen Ausrichtung bietet sie den optimalen Schattenplatz im Hochsommer. Die Wohnung ist zur Seite des Hauses gelegen mit einem ca. 1,9 m² großen Balkon zum Splitting ausgestattet und bietet daher einen besonderen Ausblick auf das Leben am Obenende.